Pease Feed & Coal

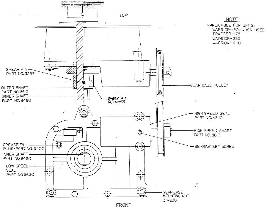
"B" Gear Case Diagram